THÀNH PHỐ CÀ PHÊ TRUNG NGUYÊN
Thành Phố Cà Phê Trung Nguyên hội tụ những “thỏi nam châm” thu hút du khách và dòng vốn đầu tư dịch vụ mạnh mẽ, Không chỉ là nơi an cư lý tưởng, khu đô thị chính là nơi mang đến cơ hội KIẾN TẠO TƯƠNG LAI với những giá trị sức khỏe, tinh thần, sự sung túc cho nhiều thế hệ, khi sở hữu linh khí thịnh vượng, thừa hưởng trọn vẹn những yếu tố “địa lợi” từ vùng đất Buôn Ma Thuột, Tại Thành phố Cà Phê, bạn sẽ được sống giữa hơi thở thiên nhiên, văn hóa đặc trưng của đại ngàn và trải nghiệm cuộc sống đẳng cấp. Với đầy đủ 5 yếu tố “vàng”, Thành phố Cà Phê là lựa chọn hàng đầu cho nhà đầu tư đang muốn sở hữu bất động sản sinh lời vững chắc tại trung tâm Buôn Ma Thuột. Không chỉ xây dựng một khu đô thị,Trong hành trình kiến tạo cuộc sống, mỗi chúng ta đều kiếm tìm một nơi vừa là tổ ấm bình yên, vun đắp hạnh phúc, vừa là một tài sản giá trị, đảm bảo tương lai vững bền cho các chủ nhân khi sở hữu tại đây, Thành Phố Cà Phê The Coffee City kiến tạo nên một hệ sinh thái sống toàn diện, nơi mỗi cư dân được nuôi dưỡng từ thể chất, tinh thần đến trí tuệ, nơi giúp thân khỏe, tâm an, trí sáng. Đầu tư vào Thành phố Cà phê chính là đầu tư vào một tương lai khỏe mạnh, hạnh phúc và phát triển bền vững cho thế hệ mai sau. . Sự giao hòa hoàn hảo giữa An Cư và Đầu Tư đang ngự trị tại Khu Đô Thị Thành Phố Cà Phê – khu đô thị đẳng cấp đáng đầu tư, Khu đô thị, là một không gian sống xanh, hài hòa với thiên nhiên và tràn đầy năng lượng, giàu giá trị văn hóa và tinh thân. Hãy cùng Tapdoanbatdongsan.com.vn tìm hiểu bài Tổng hợp phân tích dưới đây
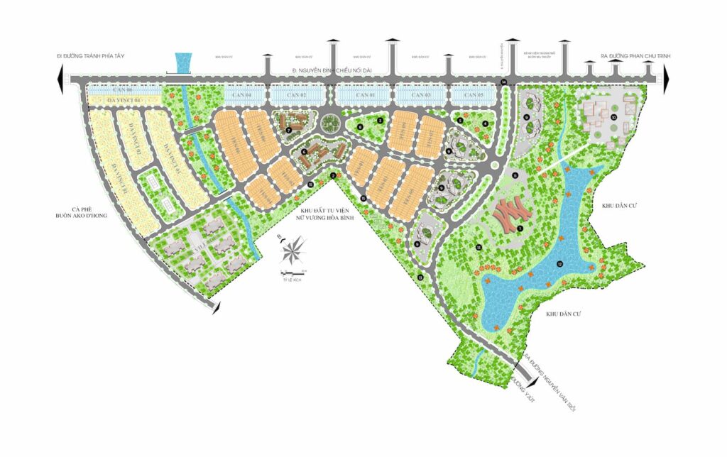
TỔNG QUAN THÀNH PHỐ CÀ PHÊ TRUNG NGUYÊN
- Tên dự án: Thành Phố Cà Phê
- Chủ đầu tư: Tập đoàn Trung Nguyên Legend
- Vị trí: đường Nguyễn Đình Chiểu, P.Tân Lợi, TP. Buôn Ma Thuột, tỉnh Đắk Lắk
- Tổng diện tích: 45,45 ha.
- Mật độ xây dựng: 27%
- Mật độ cây xanh và mặt nước: hơn 70%
- Loại hình sản phẩm: Nhà phố liên kế, Nhà phố thương mại, Biệt thự,…


